Первый этаж










ТЦ Город обладает прекрасными характеристиками местоположения. Объект расположен в центральной части города, внутри крупных транспортных потоков, на главной магистрали – Лихачевском проспекте. Вблизи расположены две остановки общественного транспорта.
Участок расположен в густонаселенном жилом массиве, в ближайшем окружении строится ЖК «Центральный» на 2 500 квартир.
В настоящее время население города Долгопрудный недостаточно обеспечено качественными торговыми площадями. Показатель обеспеченности составляет 80 кв. м на 1000 жителей.
Концепция торгового центра представляет полный спектр товаров и услуг, отвечающих всем пожеланиям разных категорий покупателей:
- продуктовый супермаркет, площадью более 3000 кв. м;
- универмаг товаров для дома и сада;
- магазин бытовой техники и электроники;
- семейный развлекательный центр;
- магазин товаров для детей;
- фудкорт и рестораны;
- галерея непродовольственных товаров ежедневного спроса.
Торговый центр Город станет самым крупным центром шопинга и досуга для развивающегося города с населением более ста тридцати тысяч человек.
Первый этаж
Второй этаж
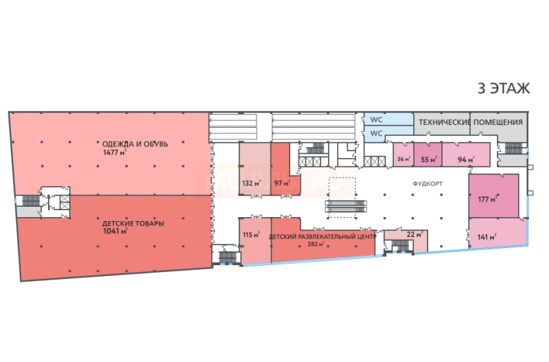
Третий этаж
Аренда, Москва и область
Торговое помещение в супермаркете "Атак"
Арендная ставка: 7200 руб. кв.м./год
Аренда, Москва и область
Торговое помещение в супермаркете "Атак"
Арендная ставка: 7200 руб. кв.м./год
Аренда, Челябинск
КТК "Северо-западный"
Арендная ставка: 4800 руб. кв.м./год
Арендная ставка: 7 200 руб. кв.м./год
Площадь: 15 500 м2
Адрес: г. Балашиха, мкр. Железнодорожный ул. Рождественская
Твое, Л' Этуаль, O'Stin, , Глория Джинс, Лента, Zarina